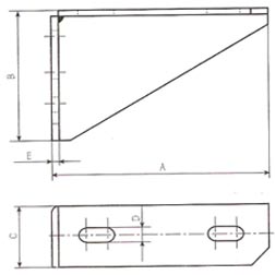
板兩邊連接座(左/右)

 2019-06-14
用途:用于高強度連接。

用法:把螺母或T形螺母、菱形螺母放入型材槽內,用六角頭螺栓連接。




右件如圖,左件與右件對


 序號

 型號

 A

 B

 C

 D

 E

 F

1

30BL2Z-B

 70

70 

 54

 6.5

40

30 

 2

30BL2Y-B

 70

70 

 54

 6.5

40

30

 3

40BL2Z-B

 85

 85

 74

 8.5

50

40

 4

40BL2Y-B

 85

 85

 74

 8.5

50

40







           


序號

 型號

 A

 B

 C

 D

 E

 1

 30BL2Z

 100

60 

 28

 6.5

 3

 2

 30BL2Y

 100

60

 28

 6.5

 3

 3

 30BL2Z-A

 210

100

 28

 6.5

 4

 4

 30BL2Y-A

 210

100

 28

 6.5

 4

 5

 40BL2Z

 150

80

 35

 8.5

 3

 6

 40BL2Y

 150

80

 35

 8.5

 3

 7

 40BL2Z-A

 210

100

 35

 8.5

 4

 8

 40BL2Y-A

 210

100

 35

 8.5

 4